︎
GS TEIKNISTOFA
Valin verkefni
Fleyvangur
Helgafellsland
Liljugata 9-25
Grófarhús
Huldugata 1-13
Liljugata 20-24
Miðborgarleikskóli
Lóugata 26
Huldugata 2-4
Ölduslóð
Lóugata 2-22
Súðarvogur
Endurheimt
Hraunbrún
Hafa samband
Upplýsingar
© GS Teiknistofa
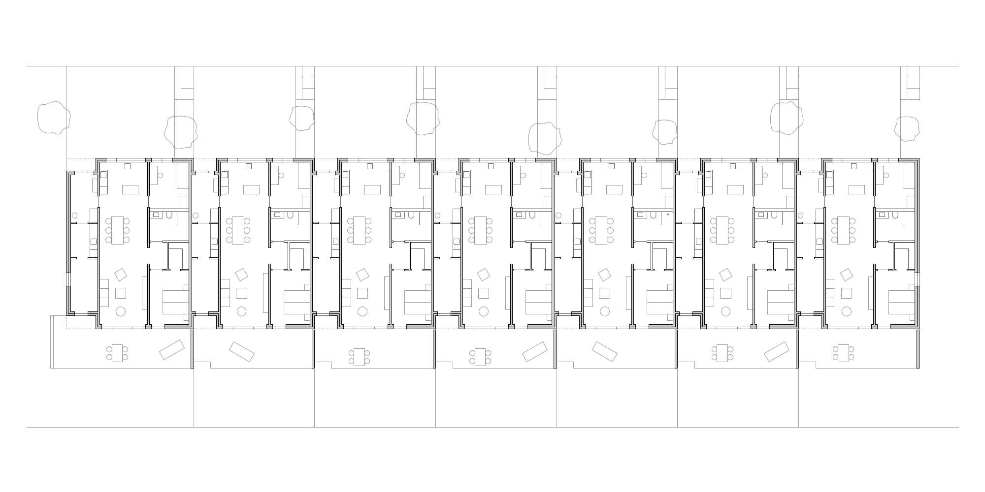
Huldugata 1-13
Staðsetning: Mosfellsbær
Ár: 2021-2023
Lýsing: íbúðarhús, raðhús
Stærð: 7x116 m2
Verkkaupi: Byggingafélagið Bakki
Ljósmyndir: GS & Studio CAPN
S
G