︎
GS TEIKNISTOFA
Valin verkefni
Fleyvangur
Helgafellsland
Liljugata 9-25
Grófarhús
Huldugata 1-13
Liljugata 20-24
Miðborgarleikskóli
Lóugata 26
Huldugata 2-4
Ölduslóð
Lóugata 2-22
Súðarvogur
Endurheimt
Hraunbrún
Hafa samband
Upplýsingar
© GS Teiknistofa
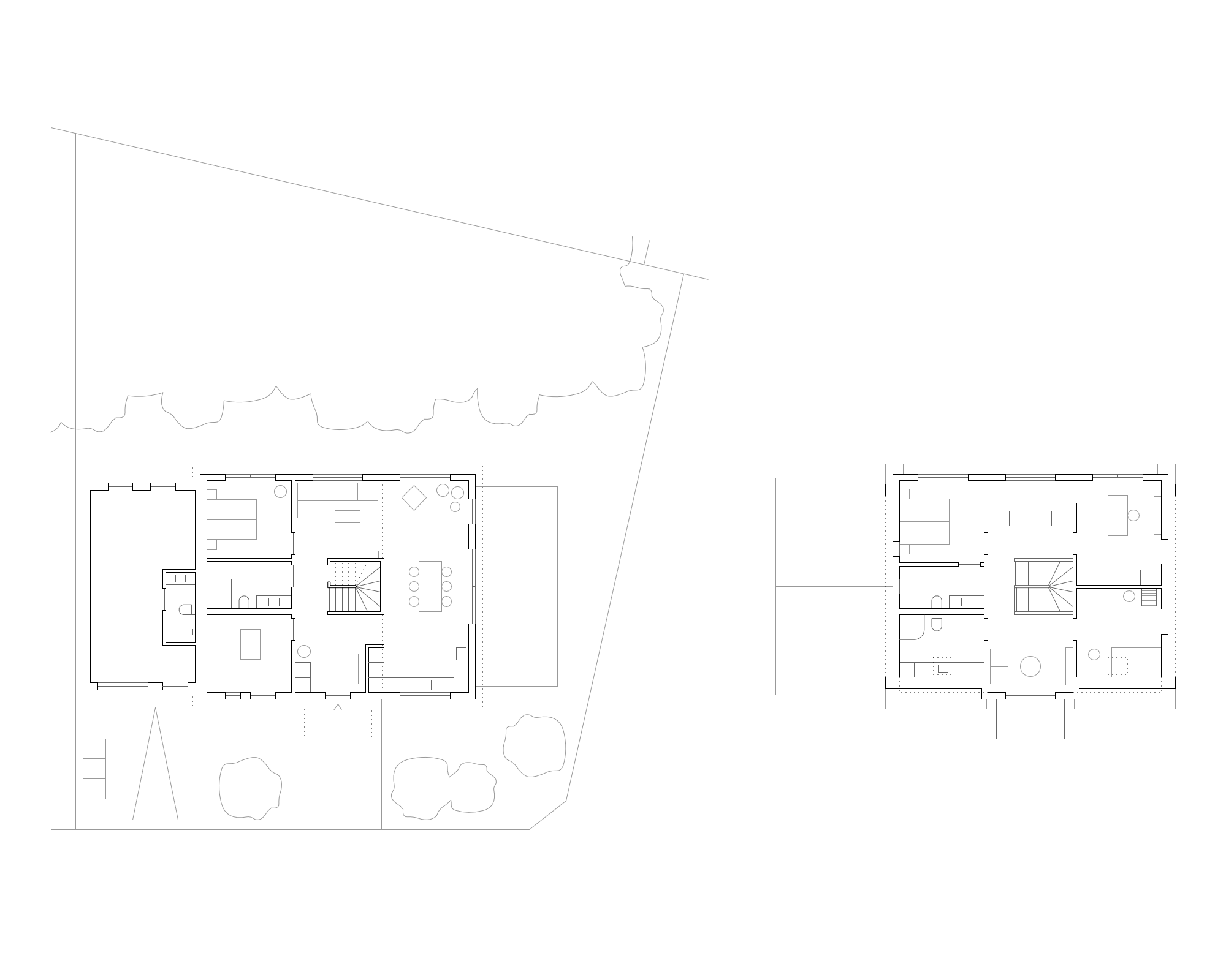
Hraunbrún
Staðsetning: Hafnarfjörður
Ár: 2023-
Lýsing: íbúðarhús
Stærð: 230 m2
Verkkaupi: einkaaðili
S
G